Capacité de levage 2000 kg flèche repliée, 1250 kg flèche déployée.
Capacité d’attelage au semoir 3500 kg. Passage optimisé de prise de force sans liaison inférieure du châssis.
Conception :
> Attelage
- Attelage au tracteur par goujons catégorie 2, Ø 28 mm, espacement de 800 mm. Réglable en hauteur afin de réduire le déport de charge.
- Couplage compact et sûr au semoir à engrais par chapes d’attelage d’épaisseur 15 mm réglables en largeur.
- 3ème point de fixation au semoir réglable par vis, fixé sur un plat d’épaisseur 15 mm sur le même ancrage que le 3ème point du tracteur.
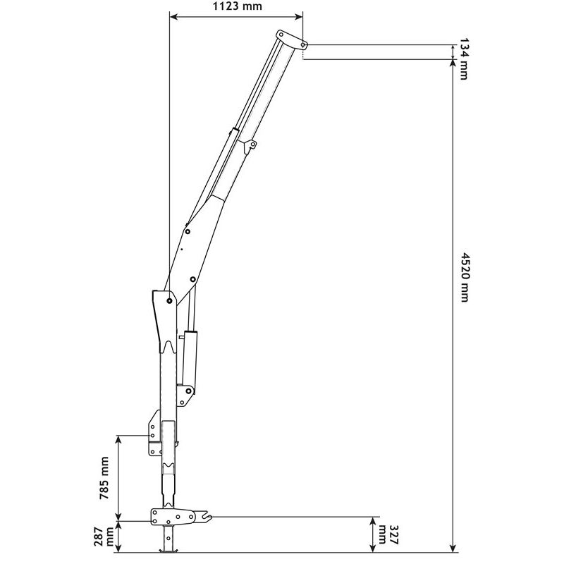
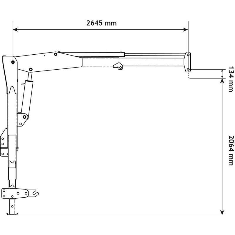
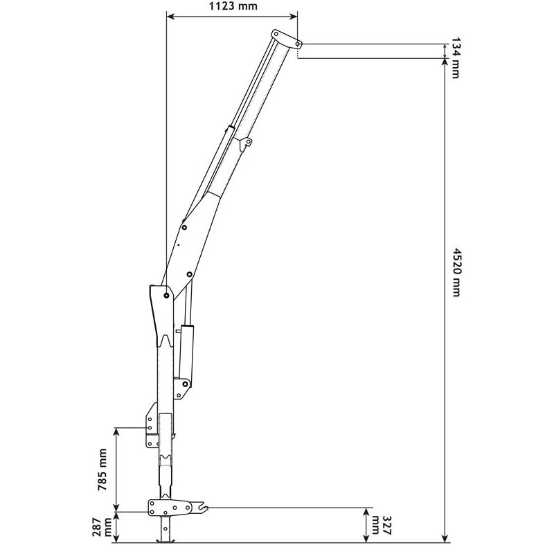
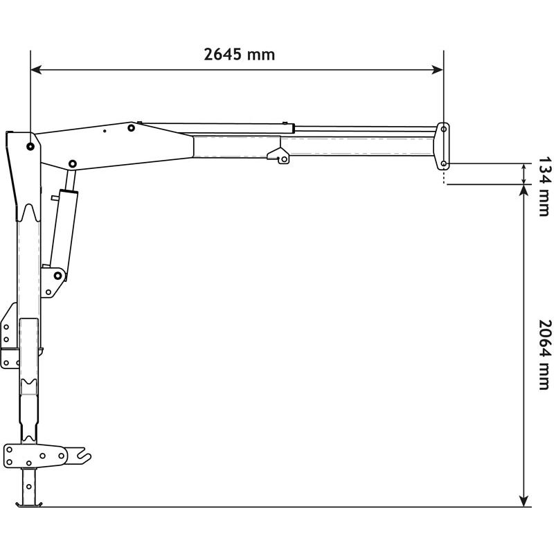
- Mât principal fabriqué en longeron de 150 x 150 mm d’épaisseur 6 mm d’un seul tenant.
- Partie basse fabriquée en longerons de 120 x 120 mm d'épaisseur 8 mm.
> Flèche
- Allonge de flèche fabriquée en tube de 120 x 60 mm d'épaisseur 6 mm.
- Axes principaux d'articulation de flèche et de galets de flèche équipés de graisseurs
> Béquille
- Béquilles 80 x 80 mm réglables et rétractables à l’embase du châssis améliorant la stabilité au momentdu levage.
- Béquille centrale réglable par le 3ème point du LEVE-SACS fourniepour assurer une bonne stabilité en position dételée.
> Châssis
- Châssis mécano-soudé, robuste et stable. Sans liaison en partie basse pour éviter d'abimer les cultures en place.
- Lève-sac recouvert d’un primaire d’accrochage et d'une laque polyuréthane.
Equipements d'origine :
Levage du mât, vérin 50x100 mm simple effet, course de 400 mm, équipé d’un clapet parachute et d’un régulateur de débit, flexible souple avec valve push pull.
Déport de flèche : coulissante sur 2 galets, un avant (galet centreur) et un arrière, vérin 30x50 mm double effet, course de 900 mm, équipé d’un régulateur de débit, flexibles souples avec valves push pull.
- Unité de vente
- L'unité
- Poids net
- 345 kg
- Attelage
- 3 points
10 autres produits dans la même catégorie :




































